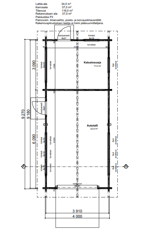
Kuvaus
Lake Autotallirakennus on jaettu kahteen erilliseen tilaan:
- Autotalli: Autotalli kattaa 22,9 neliömetriä. Se tarjoaa tilaa ajoneuvon säilytykseen ja suojaa sateelta sekä lumelta.
- Etätyöpiste: Rakennuksessa on myös 11,5 neliömetrin kokoinen etätyöpiste, jossa on erillinen sisäänkäynti. Tämä tila voi toimia myös varastona tai vaikka vieraiden majoitustilana. Julkisivuseinällä olevat isot ikkunat tuovat valoa myös tallin puolelle. Harja- tai pulpettikatolla
Autotalli Laken mitat:
- Ulkoseinämitat 9.27 x 4,0 m
- Rakennusala 37,5 m2
- Kerrosala 37,5 m2
Harjakattoinen Lake hinta:
90 x 170 mm lamellihirsi: 19.700 € + rahti
134 x 227 mm lamellihirsi: 28.680 € + rahti
Kysy pulpettikattoisen mallin hintaa!





